Realt посмотрел, сколько они стоят.
Комплекс находится на улице Интернациональной. Еще недавно это был тихий уголок Бреста, где стояли заброшенные частные дома. Все изменилось в 2019-м году, когда участок выкупила с аукциона компания «Продом». Она же и предложила возвести на берегу реки клубный дом. Разрабатывали проект «Жемчужины» проектировщики из «БрестКАДпроект».
В итоге, дом получился очень необычным и смелым. О проекте писали и говорили. Интересно что сам застройщик долго держал интригу и не называл стоимость квартир.
Со стороны кажется, что «Жемчужина» состоит из двух частей, но это одно здание, соединенное общим подземным паркингом. Одна часть комплекса смотрит на реку, вторая – на улицу. Посередине находится небольшой двор.
В клубной пятиэтажной постройке разместилось всего 38 квартир. Предусмотрены в комплексе и коммерческие помещения – они займут первые этажи.
Что касается планировок, то квартиры на набережной насчитывают от 40 до почти 200 квадратных метров. Потолки во всех квартирах – по 3 метра. В некоторых квартирах есть террасы.
У дома – закрытая территория, есть видеонаблюдение и видеодомофоны. Во дворе организована небольшая детская площадка, есть зеленая зона с беседкой. На каждую квартиру выделено парковочное место в подземном паркинге, откуда можно подняться на лифте на нужный этаж.

Стоимость квартир
Сейчас в «Жемчужине» продаются две квартиры. Обе – трехкомнатные и без внутренней отделки.
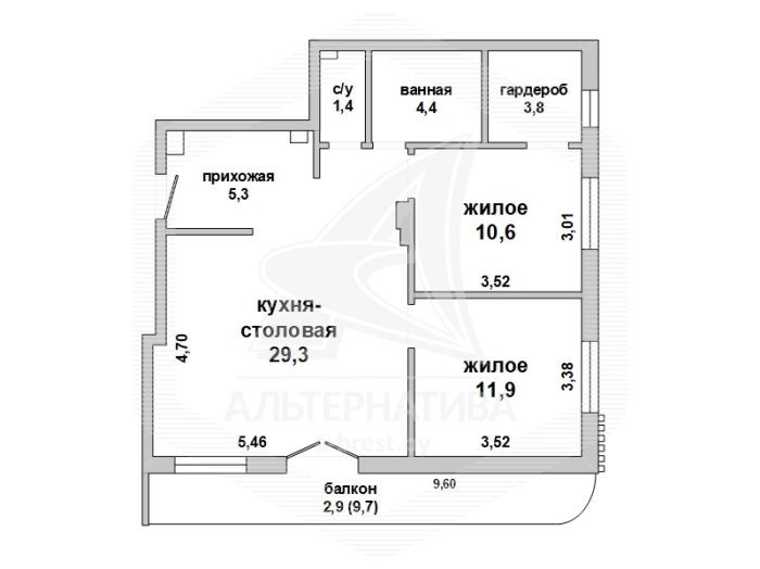
Первая квартира располагается на третьем этаже. Ее общая площадь – 66 квадратных метров. В квартире – кухня-гостиная. две раздельных комнаты, санузел, балкон, стеклопакеты (двухкамерные), окна во французском стиле (в гостиной). Полы в квартире – стяжка, стены оштукатурены и ошпатлеваны, входная дверь металлическая, установлен бойлер, автономный газовый котел, телефон, видеодомофон, система видеонаблюдения. Новая квартира без внутренней отделки. Окна выходят на две стороны. Стоимость – 93,9 тысячи долларов (1408 долларов за метр).
Еще одна квартира – практически аналогичная трешка. Окна этого жилья выходят на улицу Интернациональная. В квартире – железная входная дверь, стеклопакеты, установлен автономный электрический котел и водонагреватель, есть балкон, в спальне предусмотрена гардеробная, санузел раздельный, видеонаблюдение, видеодомофон, подземный паркинг, грузопассажирский лифт. Стоимость – 90 тысяч долларов (1349 долларов за метр).







